Digital Product Guide
Active Systems
Quantal
Ultraframe Classic
Ultraframe New Systems
Additions
General Info
Videos
Technical
Old Systems
Elevation
Uzone
Ultralite 500
Special Cases
Anglian
Everest
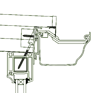
Ultralite 500 Eaves Assembly
Wallplate
Wallplate
Assemblies
Glazing Bars
Bars
Assemblies
Gutter
Marley Flowline
Marley Classic
Eaves/Fascia/Cladding
Parts
Assemblies
PVC-u Drip Profile (UDP 500)
Ventilated Fascia (UVF)
PVCu Clip fit Gutter Bracket (UCB 500D)
Fascia Fixing Screw 4.5 x 38mm (UFS 004)